Penthaus Elie Saab Sea Breeze layihəsində 28-ci mərtəbədə yerləşir və Xəzər dənizinə 🌊, Ribbon Tower 🏙️ və Sea Breeze Adasına 🏝️ heyranedici panoramik mənzərələr təqdim edir. Geniş pəncərələr, məkanın işıqlı və rahatlığını maksimum dərəcədə artırır, böyük wrap-around balkonu isə istirahət və əyləncə üçün ideal məkan 🌅 yaradır. İnteryerə ELIE SAAB Maison elementləri incəlik və zəriflik qatır.
🏡 Planlaşdırma və Xüsusiyyətlər:

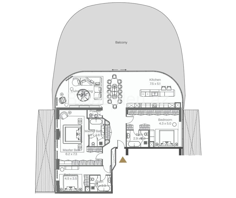
1.Qonaq və Yemək otağı
Geniş və açıq məkan, balkona birbaşa çıxışla fasiləsiz dəniz mənzərəsi təqdim edir. 🛋️ Hem istirahət, həm də qonaq qəbulu üçün idealdır.
Mətbəx (7.5 x 5.1 m)
Müasir, yüksək səviyyəli mebellər və iş səthləri ilə tam təchiz olunub. 🍽️
- Master Yataq otağı (6.2 x 7.3 m) + Ensuit hamam (2.9 x 3.6 m)
Lüks tamamlanma, iki çanaq, vanna və duş 🚿. Balkona çıxış təbii işığı artırır. - Yataq otağı 2 (4.3 x 5.0 m) + Özəl hamam
Qonaqlar və ailə üçün idealdır. 🛏️ - Yataq otağı 3 (4.5 x 3.5 m) + Hamam
Uşaqlar, qonaqlar və ya iş otağı üçün uyğun çoxfunksiyalı məkan. 👨👩👧👦 - Qonaqlar üçün san/qov
Əsas yaşayış sahəsinə yaxın yerləşir. 🚻 - Balkon
Geniş açıq məkan, dənizə panoramik mənzərə 🌅 və maksimal rahatlıq təqdim edir.
⭐ Əlavə Xüsusiyyətlər
❄️ Mərkəzi kondisioner
🧼 Tam kafel-metlaxlı hamamlar
🪟 İkiqat şüşəli pəncərələr
👗 Yataq otaqlarında daxili qarderoblar
✨ Yüksək keyfiyyətli tamamlanmalar
🛁 Mətbəx və hamamlarda müasir lüks aksesuarlar
Bu penthaus elegans, komfort və panoramik mənzərələri 🌅 mükəmməl birləşdirir və Panorama by Elie Saab Sea Breeze layihəsində lüks yaşayışın zirvəsini 🏆 təqdim edir.
🏙️ Panorama by Elie Saab Sea Breeze-də satış üçün penthaus
Mərtəbə: 28
Ümumi sahə: 361.0 m²
Daxili sahə: 217.9 m²
Balkon: 143.1 m²
🛋️ İnteryerlər
Penthaus interyerləri yüksək dizayn diqqəti ilə hazırlanıb. ELIE SAAB Maison kolleksiyası 🖤– elegans, keyfiyyətli materiallar və couture stilində mebellər bu məkanı unikal edir.
🛏️ Penthaus Yataq otağı
Yataq otağı ELIE SAAB-ın zərif həyat fəlsəfəsini əks etdirir. Neytral tonlar, bronz və mərmər elementləri ilə sakit və harmonik atmosfer yaradır. Günboyu təbii işıq ☀️ otağın ritmini dəyişir.
📞 Satış üçün əlaqə
Penthaus, dubləks və mənzillərin qiymətləri, ödəmə planları və eksklüziv endirimlər 💎 barədə məlumat üçün rəsmi satış ofisi ilə əlaqə saxlayın:
📱 +994 55 868 86 86



🏗️ Panorama by Elie Saab haqqında
Panorama by Elie Saab Sea Breeze — Sabah Investment Group, Reportage Group və ELIE SAAB ilə əməkdaşlıqda hazırlanmış premium yaşayış layihəsidir 🏢 və Xəzər sahilində ən böyük kurort zonasında yerləşir.
🔖